Onbekend
|
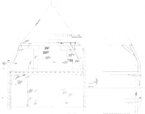
In het kleine pand Gasthuisstraat 6 is eind 2007 bouwhistorisch onderzoek gedaan. Hier zijn, achter de 19de eeuwse voorgevel, een aantal zeer interessante bouwsporen aangetroffen. Bij de bouw van dit pand in 1512 (nauwkeurige datering op basis van jaarringenonderzoek) is gebruik gemaakt van de oude zijmuur van Gasthuisstraat 8 (vermoedelijk 15de eeuws metselwerk). Van de 16de eeuwse eiken draagconstructie is op de verdieping en de zolder het grootste deel nog aanwezig. Op de verdieping is, onder de moerbalk, een compleet korbeelstel (zie afbeelding 1 hieronder), met muurstijl, peerkraalsleutelstuk en korbeel, bewaard gebleven. En op de zolder treffen we een juk aan, met twee kromstijlen, korbeels en een dekbalk (zie afbeelding 2 hieronder). Aan de zijde van de voorgevel steekt de dekbalk 56 cm over. De kromstijl en het korbeel zijn naar binnen verplaatst toen de huidige voorgevel werd aangebracht. Met behulp van de pengaten aan de onderkant en de toognagelgaten aan de zijkant van de dekbalk, valt de voormalige situatie nog te reconstrueren (zie tekening hieronder). In combinatie met de bouwsporen op de verdieping wijst dit alles op een historische situatie waarbij het pand vermoedelijk een houten gevel heeft gehad. Bij de huidige verbouwing (2007/2008) blijft de eikenhouten draagconstructie gehandhaafd.
Afbeeldingen:
|
Gemeente 's-Hertogenbosch
| 1865 | P.N. Spijkers (schoenmaker) |
| 1875 | P.N. Spijkers (mr. schoenmaker) |
| 1881 | P.N. Spijkers Sr (mr. schoenmaker) |
| 1908 | F. Claassen (kleermaker) - A. Krijbolder - M. Pennings |
| 1910 | F. Claassen (kleermaker) |
| 1919 | J. van Drunen (chef Ned. melkinrichting) - J. van Ham (wagenknecht) |
| 1923 | Hendrika M.P. van Drunen (winkeljuffrouw) - Johannes van Drunen (melkbezorger) - Hubertus J. van Erp (electricien) - Johannes B. van Gaal (zonder) |
| 1928 | J. van Dunen - H.J. van Erp - J.B. van Gaal |
| 1943 | P.G.A. van Drunen (depôt wasscherij) |